Estimated reading time: 6 minutes
This Narra Residences review examines why this upcoming private condominium in Dairy Farm is drawing attention from value-focused buyers ahead of 2026. Rather than relying solely on branding or headline PSF, Narra Residences stands out because of where its entry pricing appears to be landing relative to the wider new launch market.
In a year where many private condo launches are expected to debut at noticeably higher price points, Narra Residences appears to be positioned closer to resale-level entry, while still offering a new-key timeline, family-oriented layouts, and a quieter residential environment. This positioning aligns closely with the themes shaping the Singapore new launch condo outlook for 2026, where price discipline is becoming increasingly important.
Project Snapshot
| Project Name | Narra Residences |
|---|---|
| Developer | Santarli Realty & Apex Asia (JV) |
| Tenure | 99 years from July 2025 |
| District | District 23 – Dairy Farm / Bukit Panjang |
| Total Units | 540 residential units + 4 shops |
| Building Height | 7 blocks (6-, 13- and 16-storey) |
| Target TOP | Q4 2028 |
| Expected Vacant Possession | January 2030 |
Narra Residences Review: Pricing Snapshot and Entry Point
The main attraction at Narra Residences is not aggressive marketing language, but where the numbers sit relative to the broader market. Based on indicative guidance, Narra is shaping up to be one of the more accessible private condo launches expected in 2026, particularly once buyers move beyond compact unit sizes.
This matters because in many new launches, pricing escalates sharply for family-sized units. If Narra’s larger layouts remain close to current indications, buyers may be able to enter a new private condominium without stretching far beyond what comparable resale units already command.
| Unit Type | Approx. Size | Indicative From | Indicative PSF |
|---|---|---|---|
| 1 Bedroom | ~517 sqft | ~$998K | ~$1,930 psf |
| 2 Bedroom (1 Bath) | ~560 sqft | ~$1.176M | ~$2,100 psf |
| 2 Bedroom (2 Bath) | ~646 sqft | ~$1.284M | ~$1,987 psf |
| 3 Bedroom | ~818 sqft | ~$1.6XXM | ~$1.9XX psf |
| 3 Bedroom Premium | ~1,023 sqft | ~$2.0XXM | ~$1.9XX psf |
| 4 Bedroom | ~1,152 sqft | ~$2.4XXM | — |
| 5 Bedroom | ~1,658 sqft | ~$3.8XXM | — |
Narra Residences Review: Location and Liveability

Narra Residences is located along Dairy Farm Walk, an area long associated with lower traffic volumes and proximity to nature reserves. Rather than sitting along a commercial corridor, the project benefits from surrounding landed housing and protected green zones that limit over-intensification.
Hillview MRT is accessible via a short walk or bus ride, while the Bukit Timah Expressway provides efficient road connectivity. For buyers prioritising tranquillity and greenery over immediate urban bustle, this micro-location is a meaningful advantage.
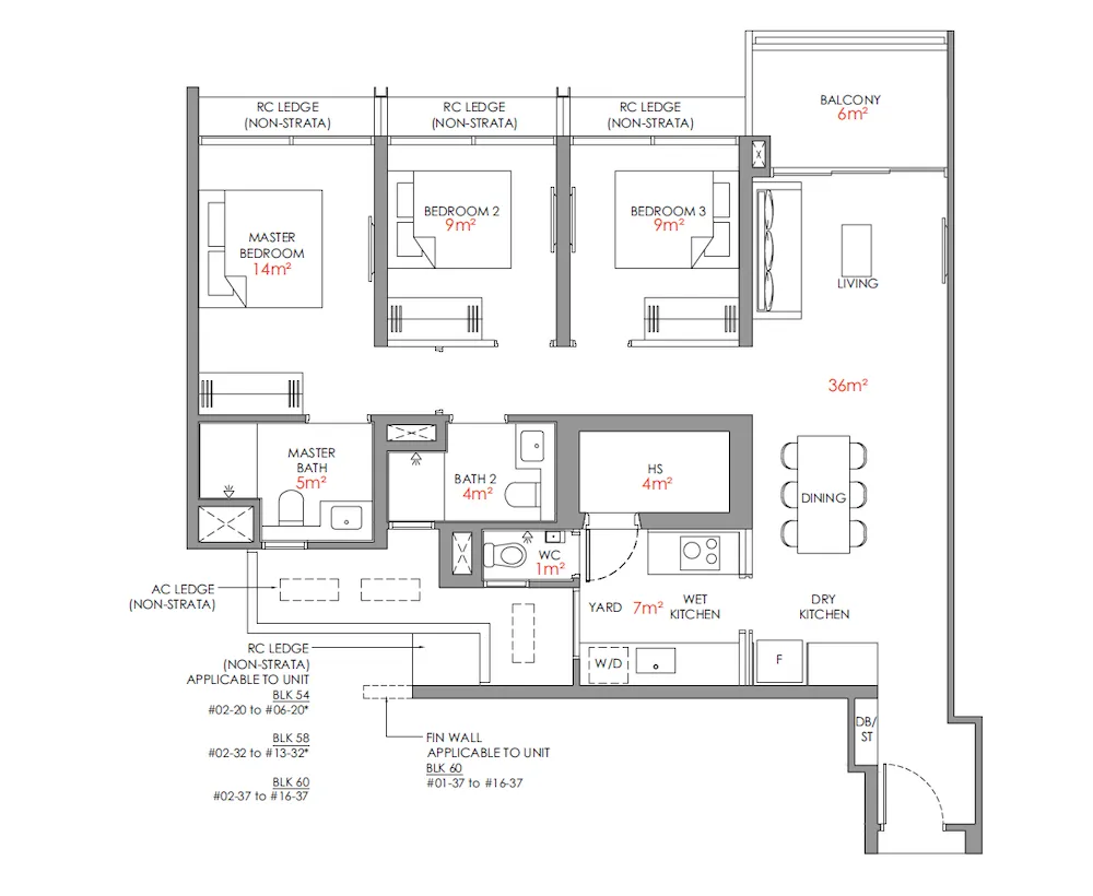
Layouts That Prioritise Usability

Layout efficiency is one of Narra’s quieter strengths. Circulation space is kept tight, bedrooms are proportioned for real furniture placement, and kitchens are configured for daily use rather than visual effect.
The larger three-bedroom formats, in particular, reflect this approach well, offering layouts that feel practical for long-term family living rather than optimised solely for marketing appeal.
A Note on Stack Selection: Hidden Opportunities

As with most developments, some of the most comfortable living experiences come from less obvious stack choices. Within Narra Residences, certain stacks benefit from wider block-to-block spacing, which can translate into improved openness, privacy, and airflow.
These “hidden gem” stacks may not attract immediate attention during launch phases, but they are often appreciated more over time by owner-occupiers who value everyday comfort.
Harmonised GFA: Useful Context When Comparing Resale

Harmonised GFA is not new, but it remains helpful when comparing Narra against older resale projects. Earlier developments often included non-living components within strata area calculations, which can make layouts appear larger on paper than they feel in practice.
The takeaway is simple: Narra’s layouts tend to feel more aligned with their stated sizes, which helps explain why pricing comparisons against nearby resale benchmarks may appear favourable.
Schools and Family Appeal

| Category | School |
|---|---|
| Primary (within 1km) | Bukit Panjang Primary School |
| Primary (within 1km) | CHIJ Our Lady Queen of Peace |
| International | German European School Singapore (GESS) |
| International | The Perse School (Singapore) |
| International | St Francis Methodist School (International) |
This education cluster supports both owner-occupier demand and longer-term rental depth, which remains relevant even for buyers purchasing primarily for own stay.
Who Narra Residences Works Best For
Narra Residences is best suited for buyers approaching their purchase with price discipline and a medium- to long-term horizon. This includes families upgrading from HDBs, couples planning for children, and owner-occupiers seeking a private condominium without paying a steep new-launch premium.
It is particularly relevant for buyers comfortable trading doorstep MRT access for a quieter residential environment, and who prioritise usable layouts, greenery, and internal spacing.
Risks to Consider
- Not a doorstep MRT development
- Longer wait for occupation compared to resale options
- Nature-adjacent living may not suit all households
How Buyers Are Approaching Narra Residences
Most buyers considering Narra Residences are not asking whether it is “cheap,” but whether the pricing makes sense relative to other options available in 2026. That usually becomes clearer when entry price, layout usability, school access, and the living environment are compared side by side — not from headline figures alone.
If you’re weighing Narra against other upcoming launches or nearby resale alternatives, I can help you run through the comparisons in a structured way — including the unit types you’re considering, the stacks that suit your priorities, and the trade-offs you’re actually making.
When you’re ready, share what you’re looking for (budget range, unit size, and whether own stay or investment), and I’ll help you shortlist the options that make the most sense.
Frequently Asked Questions
Yes. Family-sized layouts, nearby primary schools, international schools, and a quieter residential setting make Narra particularly relevant for families planning a longer stay.
Narra is more naturally positioned for owner-occupiers, with investment appeal playing a secondary role due to school-driven rental demand.
Buyers typically compare Narra against resale options or upcoming 2026 launches. The key consideration is whether the entry pricing remains favourable, as replacement supply rarely becomes cheaper over time.